Palasin Audikantaan noin kymmenen vuoden tauon jälkeen. Onhan mulla koko ajan ollut Typ 43 ja 44 -autoja, mutta ei Audia ajoautona.
Nyt hommasin käyttöharrasteeksi talviajoon 1997 S8:n 6-vaihteisena manuaalina. Kyseisen yksilön olen tiennyt jo useamman vuoden ajan, ja hieman haaveillutkin siitä. Nyt oli sitten sopiva tilanne ostaa auto itselle.
Muistan itse pikkupoikana kun S8 esiteltiin ja luin TM:stä "FUN-8" kilpisen esittelyauton tyypit. Vanhassa Audiclubin jäsenkirjeessäkin taisi olla P. Hynnisen S8 koeajo, täytyy katsoa jos sen löytäisi jostain. Auto vaikutti tuolloin aivan saavuttamattomalta, hintaa oli miljoona markkaa. Nyt kyse on lähinnä siitä että uskaltaako ostaa 21 vuotta vanhan edustusauton, ja kuinka järkevää se on.
Varusteiltaan tämä on aika karvalakki ollakseen S8, mutta toisaalta ihan hyvä niin. Tärkeimmät mukavuusvarusteet ja sähköherkut kuitenkin löytyy.
Speksit:
- AHC/DGV moottori/vaihteisto
- Alusilber metallic, LYZM
- Hiilenharmaat nappanahkapenkit ja ovipaneelit
- Hiilenharmaat "Myrtle" jalopuut
- Musta sisäkatto
- Delta CC Bose-stereot ja CD-boksi
- Tuplalasit UV-suojalla
- Laturi 120A ja akku 92 Ah
- Perus S8-varusteet eli urheiluistuimet, 20 mm madallus, kolmipuolainen ratti, paksummat kallistuksenvakaajat, logot ym.
Mittarissa on nyt 210 tkm ja täysi Audin merkkihuoltokirja. Uutena tämä on myyty Monacossa, ja tullut Suomeen jo 2002 lopulla. Kesävanteina löytyy hieman uudemmat Audin 20-tuumaiset. Hieman varaosiakin tuli mukana ja osa niistä on vielä noutamatta.
On tässä muutama vikakin, nimittäin;
- Vasen takajarrusatula jumittaa käsijarrua
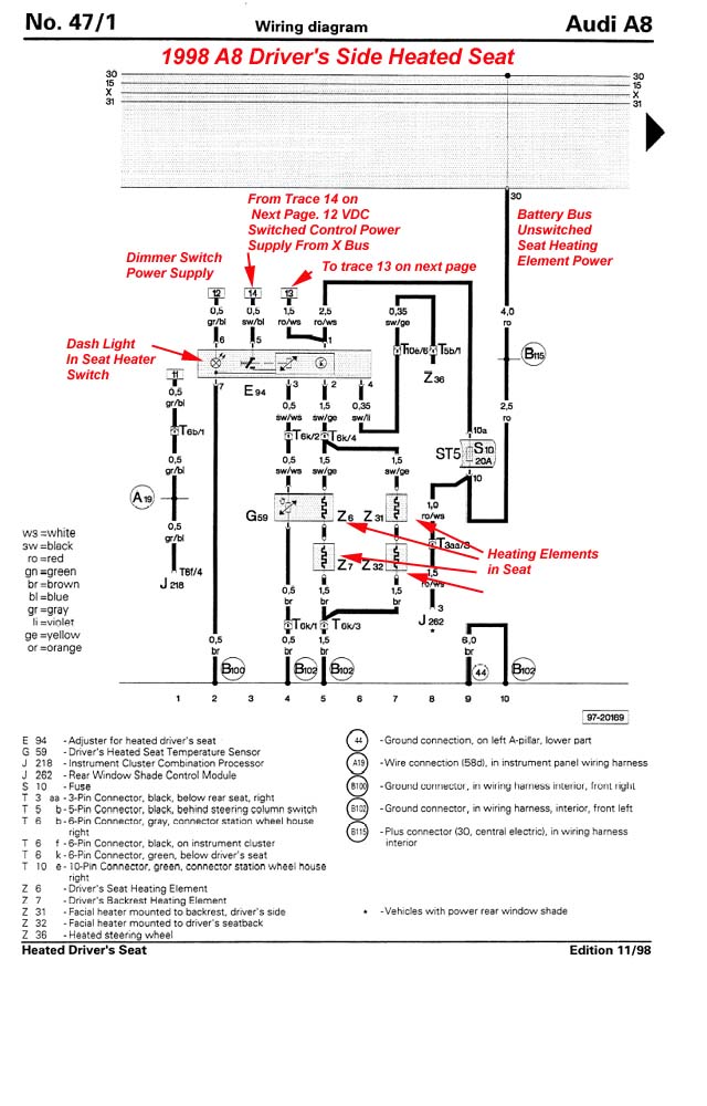
- Kuskin penkin lämmitys toimii ainoastaan reisituessa (ideoita tähän?)
- Tilttiratti nousee ja vetäytyy, muttei tule automaattisesti takaisin kun istuu autoon ja kytkee virrat. Tulee kyllä kun painaa penkin muistipainiketta. (ideoita?)
- Ilmastoinnin oikean näytön valo palanut
Voi olla että lisää "ominaisuuksia" kertyy jahka auto tulee tutummaksi. Killerin kanssa testattiinkin jo VCDS:llä että kaikki muu toimii. Muutama vikakoodi oli muistissa, mutta ne eivät ole uusiutuneet.
Tarkoitus olisi pistää tänne käyttöpäiväkirjaa ym. mitä nyt tämän auton kanssa tulee vastaan. Ei siis mitään radikaalia..toivottavasti! Toivon myös kokemuksia ja vinkkejä muilta S8 D2-kuskeilta. Jonkun verran on foorumilta tullut luettuakin juttuja.
Nyt hommasin käyttöharrasteeksi talviajoon 1997 S8:n 6-vaihteisena manuaalina. Kyseisen yksilön olen tiennyt jo useamman vuoden ajan, ja hieman haaveillutkin siitä. Nyt oli sitten sopiva tilanne ostaa auto itselle.
Muistan itse pikkupoikana kun S8 esiteltiin ja luin TM:stä "FUN-8" kilpisen esittelyauton tyypit. Vanhassa Audiclubin jäsenkirjeessäkin taisi olla P. Hynnisen S8 koeajo, täytyy katsoa jos sen löytäisi jostain. Auto vaikutti tuolloin aivan saavuttamattomalta, hintaa oli miljoona markkaa. Nyt kyse on lähinnä siitä että uskaltaako ostaa 21 vuotta vanhan edustusauton, ja kuinka järkevää se on.
Varusteiltaan tämä on aika karvalakki ollakseen S8, mutta toisaalta ihan hyvä niin. Tärkeimmät mukavuusvarusteet ja sähköherkut kuitenkin löytyy.
Speksit:
- AHC/DGV moottori/vaihteisto
- Alusilber metallic, LYZM
- Hiilenharmaat nappanahkapenkit ja ovipaneelit
- Hiilenharmaat "Myrtle" jalopuut
- Musta sisäkatto
- Delta CC Bose-stereot ja CD-boksi
- Tuplalasit UV-suojalla
- Laturi 120A ja akku 92 Ah
- Perus S8-varusteet eli urheiluistuimet, 20 mm madallus, kolmipuolainen ratti, paksummat kallistuksenvakaajat, logot ym.
Mittarissa on nyt 210 tkm ja täysi Audin merkkihuoltokirja. Uutena tämä on myyty Monacossa, ja tullut Suomeen jo 2002 lopulla. Kesävanteina löytyy hieman uudemmat Audin 20-tuumaiset. Hieman varaosiakin tuli mukana ja osa niistä on vielä noutamatta.
On tässä muutama vikakin, nimittäin;
- Vasen takajarrusatula jumittaa käsijarrua
- Kuskin penkin lämmitys toimii ainoastaan reisituessa (ideoita tähän?)
- Tilttiratti nousee ja vetäytyy, muttei tule automaattisesti takaisin kun istuu autoon ja kytkee virrat. Tulee kyllä kun painaa penkin muistipainiketta. (ideoita?)
- Ilmastoinnin oikean näytön valo palanut
Voi olla että lisää "ominaisuuksia" kertyy jahka auto tulee tutummaksi. Killerin kanssa testattiinkin jo VCDS:llä että kaikki muu toimii. Muutama vikakoodi oli muistissa, mutta ne eivät ole uusiutuneet.
Tarkoitus olisi pistää tänne käyttöpäiväkirjaa ym. mitä nyt tämän auton kanssa tulee vastaan. Ei siis mitään radikaalia..toivottavasti! Toivon myös kokemuksia ja vinkkejä muilta S8 D2-kuskeilta. Jonkun verran on foorumilta tullut luettuakin juttuja.

Comment