Ikävää ku lattialämmitys lämmittää kaljat... :-)
Kuulutus
Collapse
No announcement yet.
Foorumilaisten autotallit
Collapse
X
-
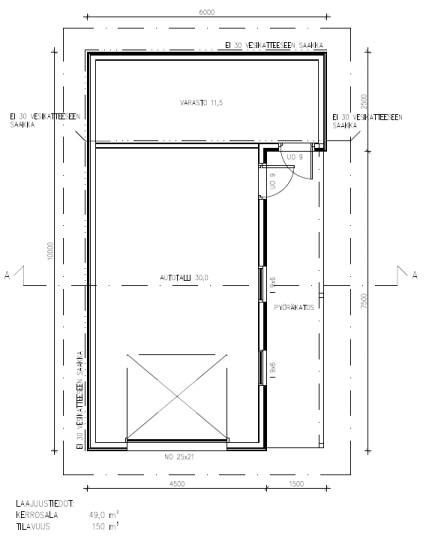
Viimein on kuvat tallista tehty ja vois kesäloman alkaessa päästä aloittelemaan. Poikkeus- ja rakennusluvat tietenkin täytyy vielä hakea, mutta ennakkoon tiedustellen ei ongelmia pitäs olla edessä. Poikkeus tarvitaan kun tässä Raahen keskustassa tällä alueella on joku viime vuosisadan alun kaava joka ei ihan tätä päivää ole.
6m x 10m tulee ulkomittoja, autotalli n. 4,5m x 7,5m. Seinämävahvuudet tietenkin vähän syö tuota vielä.
Jos ens talveksi sais auton säältä suojaan..
Comment
-
Pitäisi ensi keväänä ruopaista talli pystyyn ja kova suunnittelu on käynnissä. Ajattelin, että rinnakkain olisi kaksi tilaa omalla nosto-ovellaan. Toisessa korjaamo 2-pilarinostimella ja toinen olisi pesu- ja mahdollisesti maalaustila johon voisi laittaa matalanostimen selkävaivoja lievittämään. Vähän hankala on vielä ollut hahmottaa mikä on riittävä tila yhden henkilöauton ropaamiseen + tuollaiselle nostimelle niin että mahtuu hyvin vielä kulkemaan ympäriinsä. Romuja varten on muita tiloja riittävästi, eli niitä ei tarvitse yrittää samaan paikkaan sulloa.
Comment
-
Riittävä tila mielestäni on se, kun auto on tallissa ovet leväällään ja mahtuu kulkemaan ympäri kivuttomasti rojut käsissä.Alkuperäinen kirjoittaja Hezekiel Näytä viestiPitäisi ensi keväänä ruopaista talli pystyyn ja kova suunnittelu on käynnissä. Ajattelin, että rinnakkain olisi kaksi tilaa omalla nosto-ovellaan. Toisessa korjaamo 2-pilarinostimella ja toinen olisi pesu- ja mahdollisesti maalaustila johon voisi laittaa matalanostimen selkävaivoja lievittämään. Vähän hankala on vielä ollut hahmottaa mikä on riittävä tila yhden henkilöauton ropaamiseen + tuollaiselle nostimelle niin että mahtuu hyvin vielä kulkemaan ympäriinsä. Romuja varten on muita tiloja riittävästi, eli niitä ei tarvitse yrittää samaan paikkaan sulloa.
Comment
-
Kiinteä väliseinä kahden lämpimän tilan välillä on hieman ahdistava ajatus. Se nimittäin rajoittaa tehokkaasti tilan käyttökelpoisuutta enempi tilaa vaativien projektien suhteen.
Lähtökohtaisesti jättäisin isommat veden kanssa lotrailut tallin sisäpuolella tekemättä tai sitten tekisin pesupaikan ulkopuolelle. Pesukäyttö asettaa aika kovat vaatimukset tallin rakenteille ja kannattanee miettiä tarviaako sitä todella.
Maalauskäyttöä varten oma erillinen tilansa ei ole huono ajatus, mutta suurimmalle osalle harrastajista se maalaustouhu on senverran marginaalista että siihen ei tointane omaa tilaansa varata. Tallista helposti erotettavissa oleva tila jossa on tehokas imu likaiselle/kostealle ilmalle riittää useimmille.
Comment
-
Jumppanen: Pääasiassa omaan käyttöön, mutta onhan noita kaikennäköisiä hommia tullut tuossa sivussa tehtyä muillekin. :) Tallin olemassaolo vaikutti aikanaan valintaan kun etsittiin sopivaa omakotitaloa. :)
Comment
-
Kiitos kommentista. Toisena vaihtoehtona olin tosiaan harkinnut sellaista kumipressusta tehtyä sermiä jonka voisi vetää tilanjakajaksi. Pesuhommat hoituu tietysti myös ulkona (useimmiten) mutta paikasta ei ole kovin pitkä matka kaivoon josta kaksi taloutta saa juomavetensä. Mitenkähän mahtaa käydä veden laadun kanssa pidemmän päälle?Alkuperäinen kirjoittaja Hervast Näytä viestiKiinteä väliseinä kahden lämpimän tilan välillä on hieman ahdistava ajatus. Se nimittäin rajoittaa tehokkaasti tilan käyttökelpoisuutta enempi tilaa vaativien projektien suhteen.
Lähtökohtaisesti jättäisin isommat veden kanssa lotrailut tallin sisäpuolella tekemättä tai sitten tekisin pesupaikan ulkopuolelle. Pesukäyttö asettaa aika kovat vaatimukset tallin rakenteille ja kannattanee miettiä tarviaako sitä todella.
Maalauskäyttöä varten oma erillinen tilansa ei ole huono ajatus, mutta suurimmalle osalle harrastajista se maalaustouhu on senverran marginaalista että siihen ei tointane omaa tilaansa varata. Tallista helposti erotettavissa oleva tila jossa on tehokas imu likaiselle/kostealle ilmalle riittää useimmille.
Comment
-
Laitetaanpas omastakin tallista kuvaa. Tuossa vielä pystytys vaiheessa:
http://aijaa.com/0091010367277
Ja tuossa joku huono sisä kuva:
http://aijaa.com/0007810367279
Kokonais ala n. 140 neliötä josta tallin puoli 90 neliötä ja päässä varasto ja "työkaluhuone".
Nosto-ovet 3mx3m ja 3mx2,5m. Tallin sisäkorkeus 3.15m leveys 9.5m pituus 14,5m.
Ei varsinaista lämmitystä eli tarvittaessa masterilla talvella lämpimäksi.
Lattialle tarvis tehdä jotain (halvalla?) kun on vaan myllyllä pyöräytetty betonit eli pölisee mahottomasti...
Comment
-
Jos halvalla haluaa päästä niin maali, hieman enemmän kun panostaa niin saa ihan oikean pinnoitteen. Itse kärsin ihan jatkuvasti tuosta pöly/murenemisongelmasta, nyt kun talli on ääriään myöten täynnä tavaraa niin tyhjentäminen ei käy ihan käden käänteessä jotta voisi tuolle jotain tehdä..Alkuperäinen kirjoittaja Jafe Näytä viestiLattialle tarvis tehdä jotain (halvalla?) kun on vaan myllyllä pyöräytetty betonit eli pölisee mahottomasti...
Comment
-
Joku epoksi johdannainen toimii aina. Pelkällä epoksilla "lakkaaminenkin" saa jo ihmeitä aikaan. Isäni veti nuukana miehenä 90-luvun puolessa välissä verstaan lattiaan Sasu saunasuojan ja sekin toimi miltein 10 vuotta estäen pölyämisen. Nykyään ei enään huomaa mitään vaikutusta. Oman pussin mukaan valitsee pinnoitteen mutta muistaa vaan tehdä pohjat (hionta) hyvin oli pinnoite mitä hyvänsä.
Comment
-
Jos tuohon lattiaan maalin laittaa niin kannattaako sitä miten hioa?
Sehän on sitten talvella lumen kans niin liukas että pysyneekö kävelijä pystyssä?
Biltemassa 2 komponentti lattiamaali 45 eur satsi. Maalaa noin 10 neliötä. Mahtaisko tuolla tehdä mitään?
Motonetissä muistaakseni oli viime talvena myynnissä sellaista puolimetriä leveää puolisenttistä kumimattoa. Sen kun nakkaa ajourien kohille niin ei nastat syö lattiaa.
Comment
-
Mastertop on yksi parhaista ellei paras pinnoite, mutta halpa se ei ole enkä tiedä onko mahdollista käyttää valmiille betonipinnoille. Ei ole liukas eikä nastatkaan siihen pysty.
Comment
-
-
Sen verta hioo että lähtee betonin liima-aineet pois ja mahdolliset öljy läikät jos lattia on "käytetty". Isompia aloja kannattaa hioa timantilla jos betoni on vanhempaa eli kovempaa ja poistettavaa on paljon. Esim joku omakotitalon kokoinen ala jossa on valu kuivanut muutaman kuukauden niin siihen riittää ihan hyvin sellainen lattian kiilloituskoneen näköinen laite johon tulee karkea hioma"paperi" kiekko.Jos tuohon lattiaan maalin laittaa niin kannattaako sitä miten hioa?
2-K Epoksi pinnoite johon on telattu kvartsi hiekkaa päälle niin se ei ainakaan ole liukas.
Comment
-
kannattaahan se hapolla pestä että lähtee kaikki liimajämät ym..
http://www.tikkurila.fi/teollinen_ma...telymenetelmat
Tuosta voi lähtee liikkeelle jossei ole hajuaakaan mitä pitäisi tehdä..
Mastertoppia joitakin tuhansianeliöitä tullu rullattua..
- Likes 1
Comment
-
En olisi huolissani betonilattian liukkaudesta vaikka se olis hiottukin ja sitten maalattu pariin kertaan noilla betonimaaleilla. Sitten on eri asia jos laittaa pinnan paksulla pinnoitteella kiiltävän tasaiseksi, se voi olla lumen kanssa liukas. Pyörien kohdalle kannattaa laittaa kumimatot jotta nastat ja tiesuola eivät pääse tekemään tuhojaan.
Itse hankkisin lattiamaalit työkonemaaleja myyvästä kaupasta, 2-k epoksi tulee sieltä edullisemmaksi ja kestää varmasti jos pohjatyöt tekee kunnolla. Toki kärytkin on eriluokkaa kuin lattiamaaleilla se kannattaa huomoida maalatessa.
Comment
-
Vanhan tallin lattian pinnoituksessa. Kannattaa öljyläikkien kohtia polttaa toholla niin tarttuu pinnoite myös niihin kohtiin. Kuparilaikka lattia hiomakoneseen paikalleen niin lähtee isommatkin möykyt lattiasta ja sen jälkeen voi vielä vetäistä kivellä tai parerilla niin tulee siisti pinta. Uuteen lattiaan laittaisin mastertopin tai muun siroite pinnoitteen. Vanhaan lattiaan epoxi maali on hyvä.
Comment
-
Tuo tallin lattian merkkaus viivoilla ei ole sit oikeasti mitenkään pöhkömpi idea.
Maalaisin oman askartelutilan lattiaan auton ulkomittojen mukaan +1 m kylkiin ja keulaan ns. tilavarausta, jonnekka ei tule laitettua mitään - jolloin aina voi ajaa auton talliin miettimättä mahtuuko se oikeasti sinne.
Comment
-
Kaupunginhallitus myönsi eilen kokouksessa poikkeamisluvan tallille, nyt rakennuslupa sisään ja äkkiä. Meni kesäkuussa ajoitukset persiilleen tuon poikkeamisluvan kanssa, 2pv liian myöhään sisään, esityslista oli tehty ja seuraava kokous oli siis vasta nyt 20.8.
Mutta etenee rojekti kuitenkin=)
Comment
-
Itse olen myös maalannut renkaan linjat ja renkaan keskipaikat tallin lattiaan. Helpottaa kummasti nosturille ajoa, eikä tarvi koskaan sen kummemmin tähtäillä kun nosturin nostovarret on aina kohdallaan.Maalaisin oman askartelutilan lattiaan auton ulkomittojen mukaan
Comment

Comment